Philomath Residence

STATUS:
In Progress, 2025/26

LOCATION:
Philomath, OR

Philomath Residence

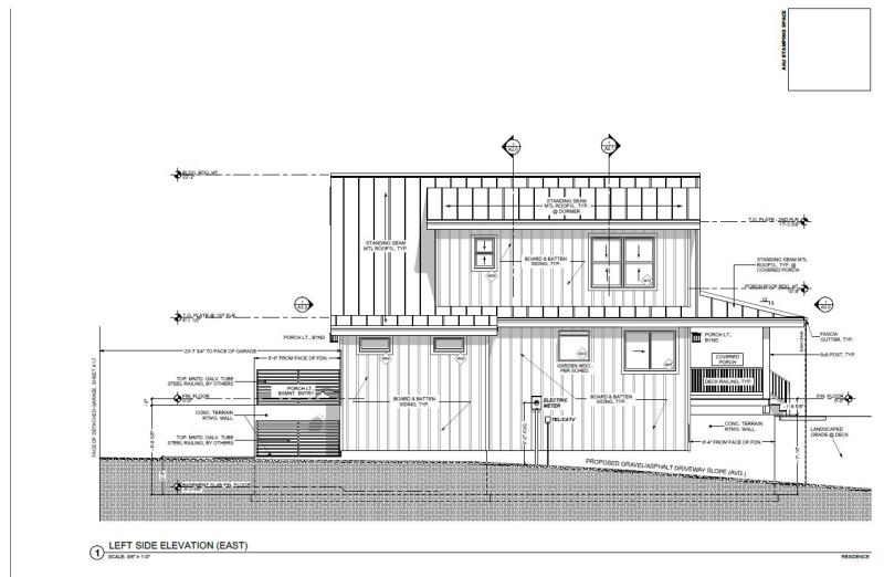
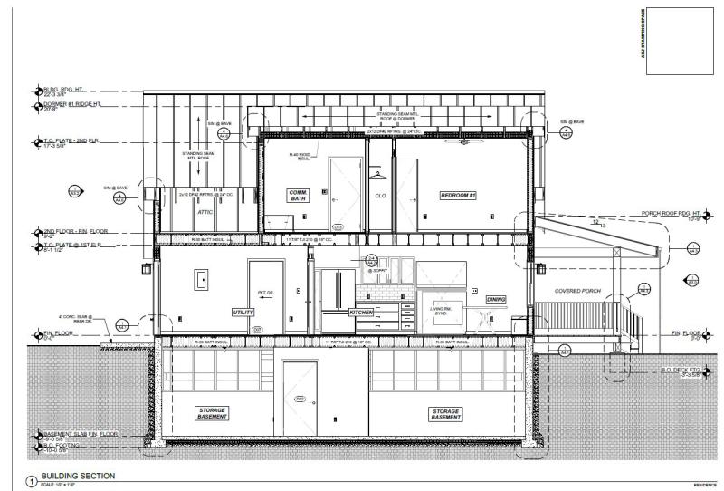
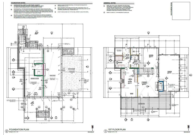
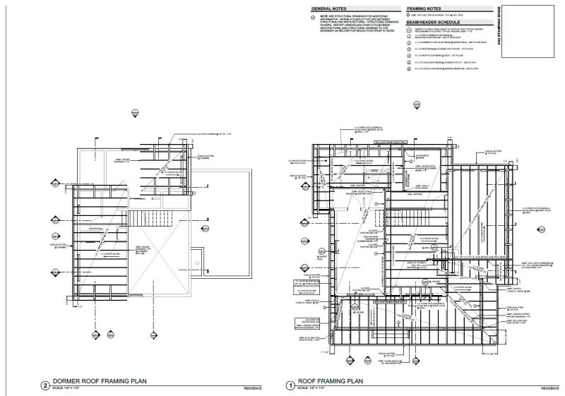
PROJECT OVERVIEW

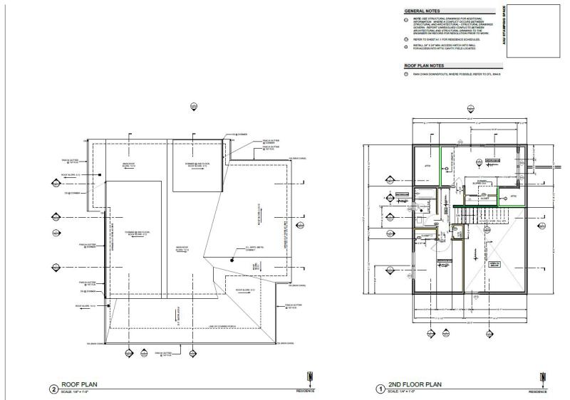
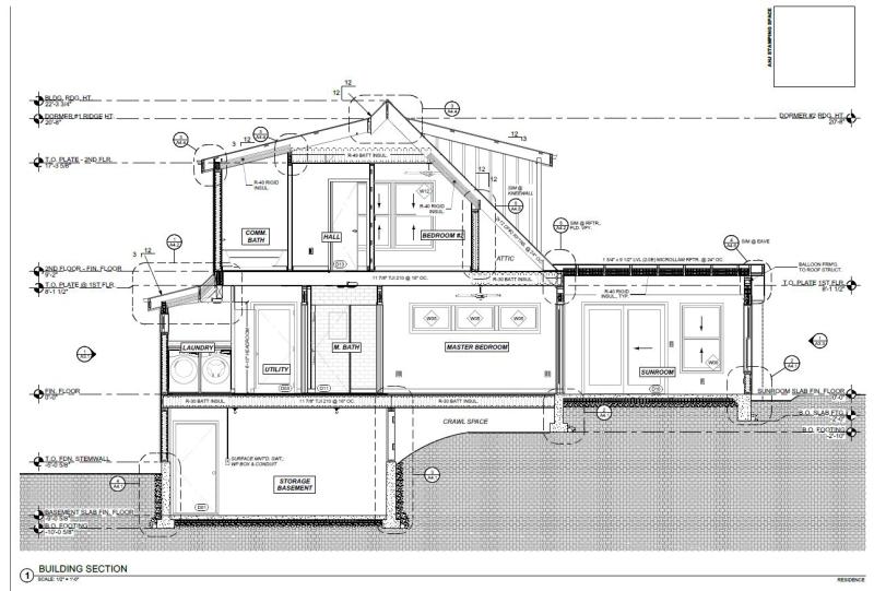
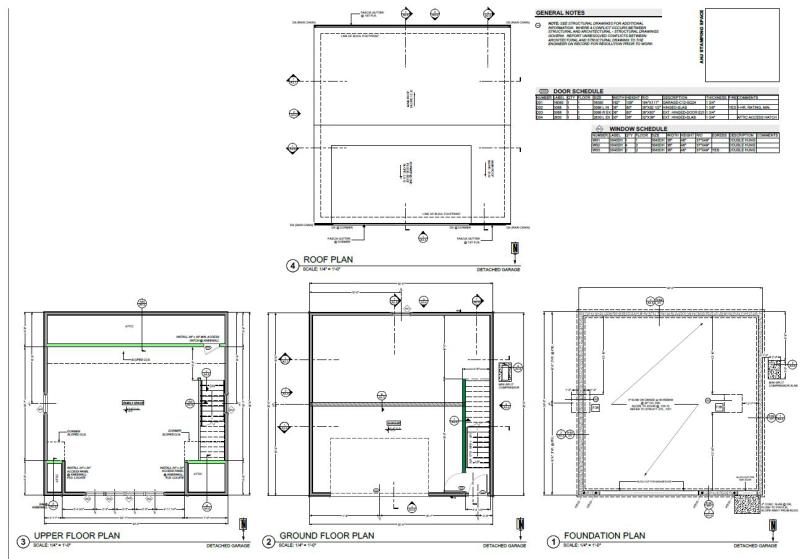
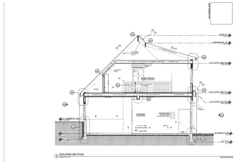
This project is a brand new residence on an open plot of land. The Client came to MOPO with an existing plan set that they loved & MOPO helped them with layout improvements to fit their family needs, lifestyle & living. The Client had also added the Detached Garage to the project scope of work. Plans have been finished & awaiting Approval.