Phased Home Renovation

STATUS:
In Progress, 2025/26

LOCATION:
Portland, OR

Phased Home Renovation

PROJECT OVERVIEW

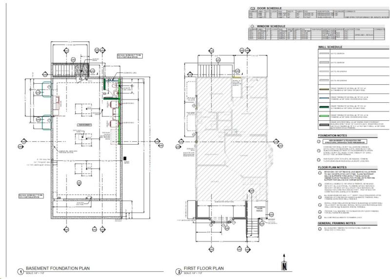
This project has been an ongoing process having started in 2023. The overall plan for the site is to first replace the foundation/basement (which has completed in 2025). The next step is to create a new ADU (Accessory Dwelling Unit) detached at the rear of the property. Once this phase is completed, the last phase is a renovation of the primary residence & dividing the home into (2) separate dwellings. This phase will require the addition of a full 2nd Story. Stay tuned as this project develops…very exciting.